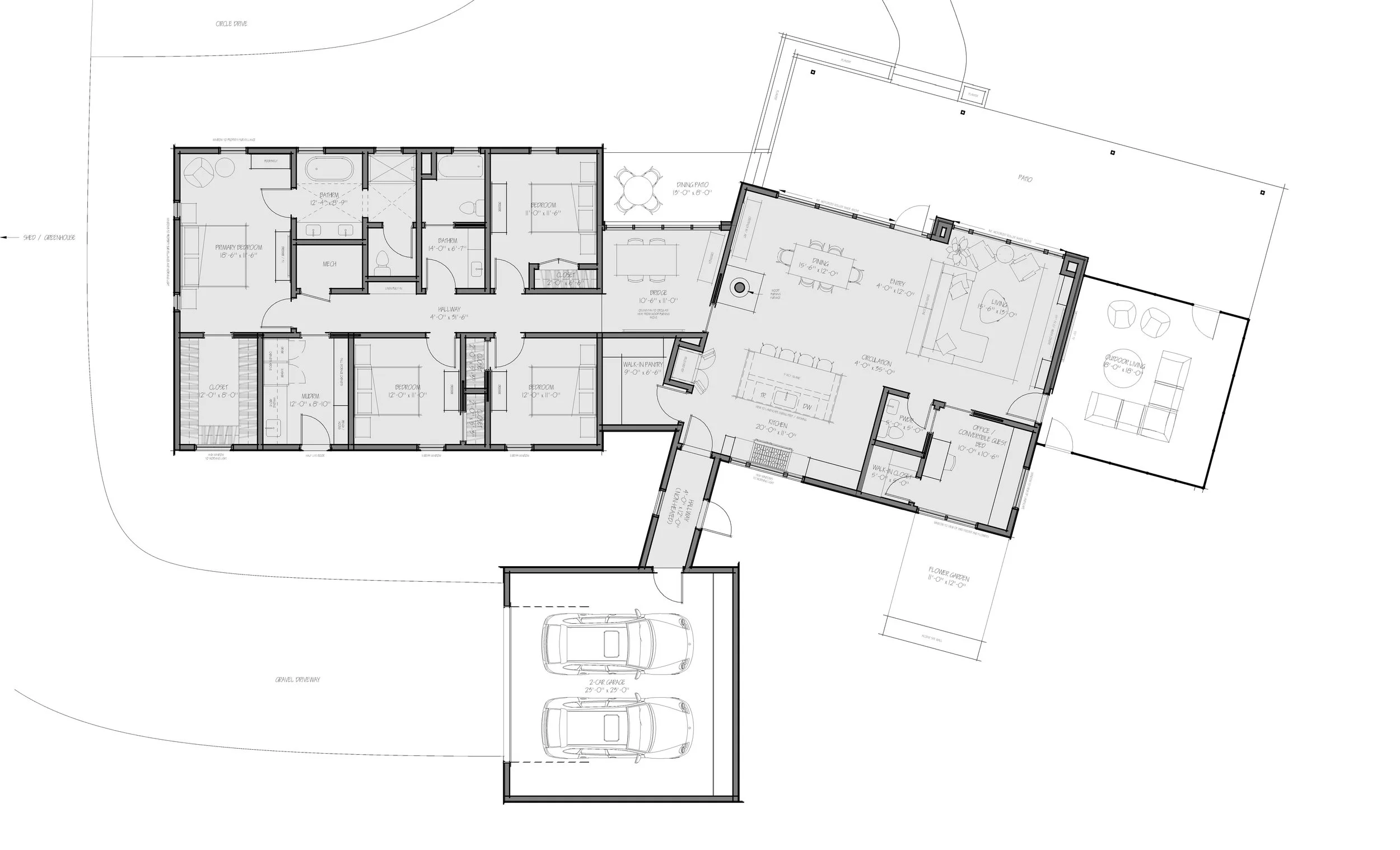
This contemporary home was designed for empty nesters to accommodate regular visits from extended family. It prioritizes site-specific views, orientation toward homesteading activities, and accommodation of daily flow for its inhabitants.

Designed 2022 | Concept

Size | 2,700 SF

Program | 5 Bed / 2.5 Bath

Project Priority | Homestead House for the Whole Family to Visit

**Work performed while employed by Bryant Flink Architecture Design.

Callan did a stunning job on our house plans.  I expected that her designs would be inspiring and fit our family well, and she did not disappoint.  What surprised me was how deeply she listened to truly understand what we needed in a home, often in ways we would never have considered.  She made the process pleasant and easy, and I love her work!”

-Kelly N.

Shiloh Grove Residence

‍ ‍

Previous
Previous

Spriggs Court